• Català
  • Español
  • English
  • Inici
  • Què fem
  • Treballs
  • Organigrama
  • Premsa
  • Enllaços
  • Contacte

ÀREA PULMÓ P0 HOSPITAL DE...

TERRASSA
2020-2021

EDIFICI HOSPITALARI POLIVALENT

BARCELONA
2020-2021

CAP A SANT FELIU DE...

SANT FELIU DE CODINES
2020-2022

RESIDÈNCIA D’ESTUDIANTS VILA NOVA A...

VILANOVA I LA GELTRÚ
2020

RSU I REURBANITZACIÓ DEL C....

BARCELONA
2019-2020

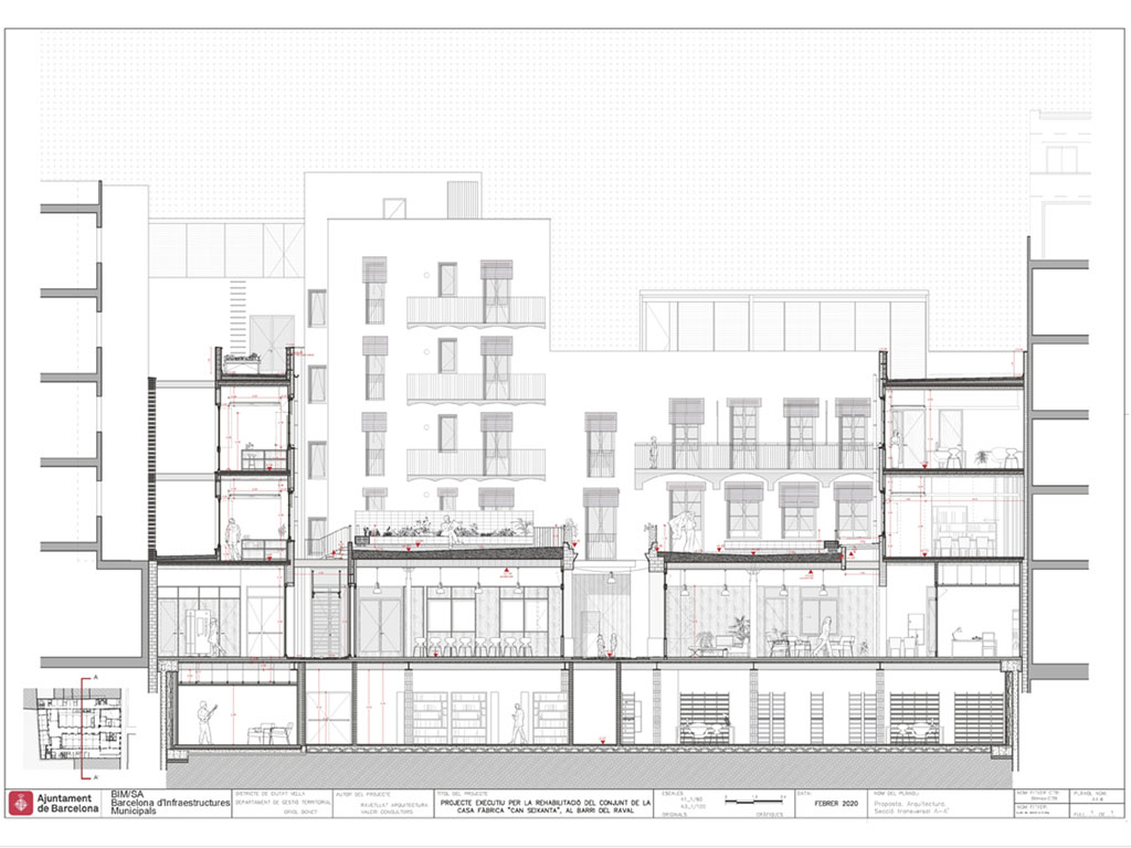
REHABILITACIÓ DEL CONJUNT DE LA...

BARCELONA
2018-2021

EDIFICI DE 45 HABITATGES

BARCELONA
2018-2021

CAMP DE FUTBOL BARÓ DE...

BARCELONA
2019 - 2020

Paginació de les entrades

Anterior 1 … 5 6 7 … 15 Següent

Construcció i Control Marina, 334, ent. 4t 08025 Barcelona T 93 433 46 52 cic@construccioicontrol.comTermes i condicions  Actualització 22/08/2025     Linkedin